Most swimming pools are not useable throughout the year especially during the cold weather and therefore heating is required. A particularly effective solution is a Dayliff Heat Pump that utilises energy from two sources, heat from the ambient air and electric power to run a compressor in a reverse refrigeration cycle, the compression process extracting heat from the ambient air for transfer to the pool through a heat exchanger. The models are highly efficient operating at a Coefficient of Performance (COP), which is the ratio of energy output to direct energy input of up to a range 7-15 units, depending on environmental conditions.
The advanced SPI inverter controlled models feature DC inverter technology which provides variable heat outputs from 20% to 100% of capacity. They are more economical to run compared to fixed capacity alternatives as the heat output is automatically varied according to requirements to maintain a set temperature.
The models include an integral controller and durable weatherproof housing suitable for outdoor installation. For optimal performance it is recommended that a pool cover is used to reduce heat dissipated through evaporation. Particular features include:-
- High efficiency, low noise Mitsubishi compressor that uses environmentally friendly R32 refrigerant
- Advanced dual coil titanium heat exchanger for long corrosion free life
- Remote controller to set temperature up to 40°C with digital system settings and fault indicators with WiFi enabled remote control
- Built in protection for low water flow, high and low pressure and electrical overload
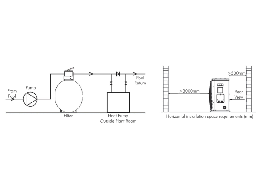
- Fully automatic and simple to install on the filter return to pool pipe with minimum plumbing and electrical connections
- All models suitable for reverse cooling configuration
The Dayliff range of heat pumps are robust and efficient units that are the ideal solution for cost effective swimming pool heating in a variety of conditions.
OPERATING CONDITIONS
Heating Temp Range: 15 - 40°C
Insulation Class: IPX4
Min/Max Operating Pressure: 0.2/4.4 Bar
PUMP DATA AND DIMENSIONS
| Model |
Heating Capacity |
Max Input Power(kW) |
Current Max(A) |
Voltage(V) |
Max Flow m³hr |
Pool Capacity m³ |
Dimensions |
Weight(kg) |
| Output, kW |
COP Range |
L |
W |
H |
| SPI-150 |
2-10 |
7-16 |
0.2-1.5 |
7 |
1x240 |
3.5 |
10-40 |
836 |
379 |
591 |
43 |
| SPI-170 |
4-17 |
0.3-2.5 |
12 |
5.5 |
40-70 |
900 |
400 |
650 |
65 |
| SPI-280 |
7-28 |
0.5-4.2 |
19 |
9 |
80-140 |
1056 |
416 |
744 |
85 |
| SPI-700 |
50 |
1-10 |
26 |
3X415 |
20 |
120-200 |
1416 |
752 |
1055 |
280 |
*Performance values given at Air 26°C, Water 26°C and Humidity 80%.